Bory-Zilina
    

Smart House





MORAVA
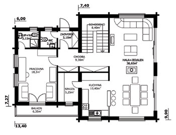
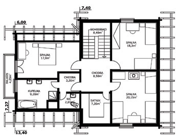
Rodinný dom MORAVA

ROZMER
13,4 x 9,90m

ÚŽITKOVÁ PLOCHA
195 m2




POHĽADY




Pôdorys