Bory-Zilina
    

Smart House





SILVIA
Rodinný dom SILVIA

ROZMER
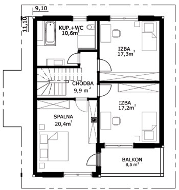
9,10 x 11,10 m

ÚŽITKOVÁ PLOCHA
151 m2



POHĽADY



Pôdorys