Bory-Zilina
    

Smart House





MONARCH
Rodinný dom MONARCH

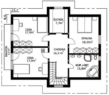
ROZMER
11?7 x 8,5 m

ÚŽITKOVÁ PLOCHA
176 m2



POHĽADY



Pôdorys