Bory-Zilina
    

Smart House





DOMINANT
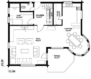
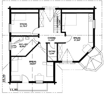
Rodinný dom DOMINANT

ROZMER
11,8 x 10,3 m

ÚŽITKOVÁ PLOCHA
185 m2



POHĽADY



Pôdorys

dominant__7_.jpg