Bory-Zilina
    

Smart House





LUCIA
Rodinný dom LUCIA

ROZMER
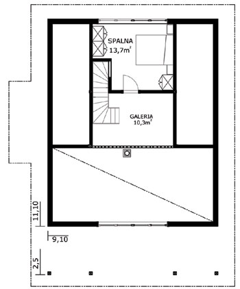
9,10 x 11,10 m

ÚŽITKOVÁ PLOCHA
109,7 m2



POHĽADY



Pôdorys