Bory-Zilina
    

Smart House





TREND
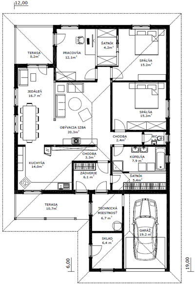
Rodinný dom TREND

ROZMER
12 x 9m

ÚŽITKOVÁ PLOCHA
157 m2






POHĽADY




Pôdorys