Bory-Zilina
    

Smart House





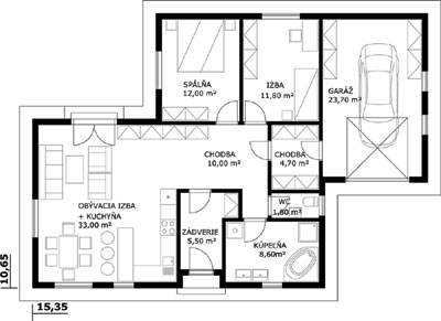
BUNGALOV 4D
Rodinný dom BUNGALOV 4D

ROZMER
10,65 x 15,35m

ÚŽITKOVÁ PLOCHA
111,4m2



POHĽADY



Pôdorys