Bory-Zilina
    

Smart House





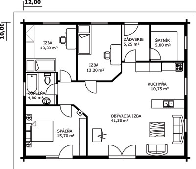
BUNGALOV 1D
Rodinný dom BUNGALOV 1D

ROZMER
10 x 12m

ÚŽITKOVÁ PLOCHA
109 m2



POHĽADY



Pôdorys