Bory-Zilina
    

Smart House





ADAM
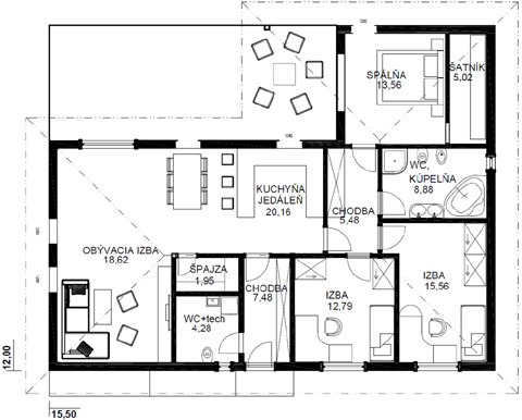
ROZMER:
12 x 15,5 m

ÚŽITKOVÁ PLOCHA:
157m2





POHĽADY




Pôdorys