Bory-Zilina
    

Smart House





Altánok MALENA

Altánok MALENA


Popis
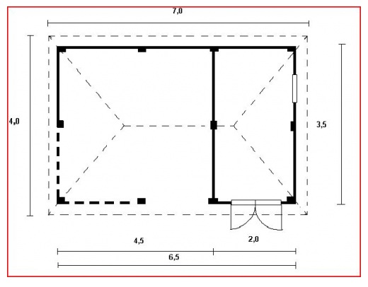
Altánok s dielňou ( prípadne bez )
materiál: sušené smrekové drevo
rozmery:  4 x 5 m s dielňou, prípadne bez
                4 x 7 m s dielňou, prípadne bez


CENA: od 3 200 EUR s DPH
Uvedená cena je bez montáže. V prípade záujmu o cenu konkrétneho rozmeru nás prosím kontaktujte e-mailom.







POHĽADY








PÔDORYS