Bory-Zilina
    

Smart House





BUNGALOV 6D

BUNGALOV 6D

rodinný zrubový dom jednopodlažný




POPIS

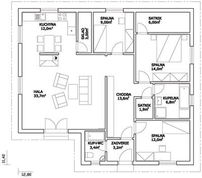
Rozmer: 11,4 x 12,8 m
Úžitková plocha: 118,6 m2





POHĽADY

Západný

Južný

Východný

Severný

PÔDORYS