Smart House
Smart House
BUNGALOV 3D
BUNGALOV 3D
rodinný zrubový dom jednopodlažný
POPIS
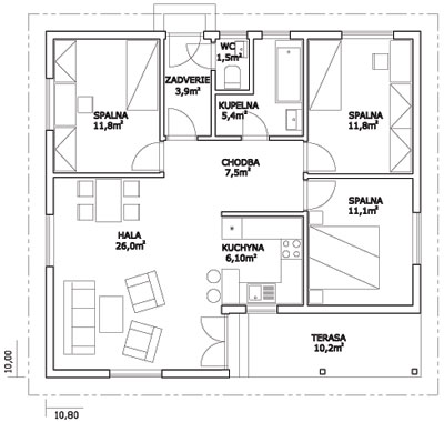
Rozmer:
10,0 x 10,8 m
Úžitková plocha:
85,1 m
2
POHĽADY
Západný
Južný
Východný
Severný
PÔDORYS