Smart House
Smart House
D / Modern C
D/Modern C
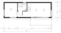
Pôdorys:
Rozmer: 3 x 11 m
Teplená izolácia
Plastové EURO okná
Cena:
23 917, 71 EUR
, 720 545,- Sk
s DPH
«Späť