 |
 |
Smart House |
|
|
|
Rekreačná chata Martin
Najpredávanejšia REKREAČNÁ CHATA MARTIN 16 990 EUR
teraz v akciovej cene 15 990 €
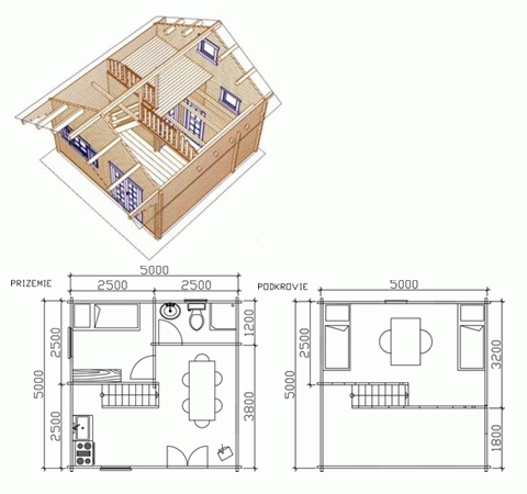
Rekreačná chata Martin 5 x 5 m, prízemie + poschodie
- Hrúbka 64 mm – smrek masív
- Tepelná izolácia podlahy, strechy
- Okná, dvere + okenice, dvernice
- Strešná krytina – KATEPAL s montážou
- Oplechovanie štítov a okapov
- Montáž
- Hydroizolácia
- Zastavaná plocha 25 m2, Úžitková plocha 41 m2
|  |  | - Garantujeme žiadne skryté príplatky, pevnú a konečnú cenu
- Doba montáže 20 hodín
- Dodacia lehota 4 týždne
- Poskytujeme službu zabezpečenia stavebného povolenia
|
Nákres a pôdorys

Rekreačná chata Martin je od r. 2010 najpredávanejším model z radu rekreačnýc chát. Jedná sa o chatu zo smrekového sušeného dreva. Vnútorné riešenie chaty je riešené s maximálnym využitím vnútorného priestoru. Rekreačná chata je poschodová, poschodie tvorí tzv. galéria, ktorá je otvorená, je možné z nej vidieť na prízemie a je určená na spací priestor. Prízemie tvorí kúpelňa s WC, samostatná spálňa a spoločenský priestor určený na kuchyňu s obývačkou. V prípade požiadaviek zákazníka je možné upraviť polohu jednotlivých okien, dverí a prispôsobiť vzhľad chaty ( terasa, prístrešok ...), upraviť jej výšku, alebo rozmer. Montáž samotnej chaty s doplnkami prebieha max 6 dní v závislosti od terénu a počasia. V prípade záujmu zákazníka je nutné si pripraviť stabilný betónový podklad, prípadne zámkovú dlažbu ( po dohode je možné zabezpečiť podklad aj z našej strany ) a následne po montáži rekreačnú chatu natrieť impregnačným náterom. Rekreačná chata si podľa Stavebného zákona vzhľadom na jej rozmery nevyžaduje stavebné povolenie, iba ohlásenie stavby, avšak iba v prípade, že sa jedná o doplnkovú stavbu. Zo skúseností však každý Stavebný úrad pristupuje k tomuto modelu iným spôsobom, sme však súčinní pri vybavovaní potrebných dokumentov v najvyššej možnej miere v každom prípade.Nezodpovedali sme všetky Vaše otázky? Kedykoľvek nás môžete kontaktovať e-mailom: abosikova@bory-zilina.sk, alebo telefonicky: 0908 556 440, 041 / 72 356 29.
|
|