Bory-Zilina
    

Smart House





B/LÝDIA

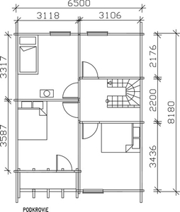
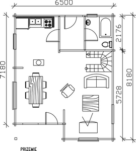
B/Rekreačná chata LÝDIA (s podkrovím)


Vonkajšie steny - 68 mm masívny stenový hranol zabezpečený proti deformácií drevenými kolíkmi a závitovými tyčami



otonikar3.jpg



otonikar6.jpg

Cena chaty EUR, Sk s DPH:                         34 510, 38 EUR  /  1 039 660,- Sk
Cena izolácií a vnút. obkladov s DPH:        8 723, 69 EUR  /     262 810,- Sk
Cena Euro okien a dverí s DPH:                  9 472, 22 EUR  /     285 360,- Sk

*Cena bez dopravy, náterov, strešnej krytiny, izolácie, montáže a inštalácií


Technické informácie