Smart House |
|
|
|
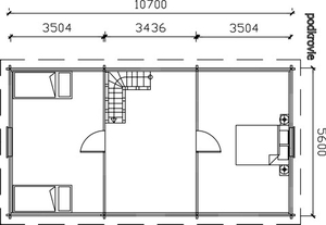
B/MAURICIO II
B/Rekreačná chata MAURICIO II (s podkrovím)
Vonkajšie steny - 68 mm masívny stenový hranol zabezpečený proti deformácií drevenými kolíkmi a závitovými tyčami     Cena chaty EUR, Sk s DPH: 31 674, 93 EUR / 954 239,- Sk Cena izolácií a vnút. obkladov s DPH: 9 532, 96 EUR / 287 190,- Sk Cena Euro okien a dverí s DPH: 6 699, 86 EUR / 201 840,- Sk
*Cena bez dopravy, náterov, strešnej krytiny, izolácie, montáže a inštaláciíTechnické informácie
|
|