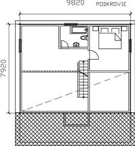
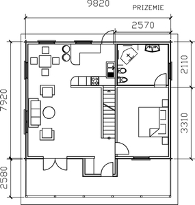
B/Rekreačná chata ARIS (s podkrovím)
Vonkajšie steny - 68 mm masívny stenový hranol zabezpečený proti deformácií drevenými kolíkmi a závitovými tyčami


Cena chaty hrúbka steny 68 mm:
36 903, 67 EUR , 1 111 760,- Sk s DPH
Cena izolácií a vnútorných obkladov:
8 402, 71 EUR , 253 140,- Sk s DPH
Cena Euro okien a dverí:
5 866, 02 EUR , 176 720,- Sk s DPH
Cena chaty obsahuje vonkajšie steny v hrúbke dreva 68 mm, drevené okná s okenicami a vchodové dvere-jednoduché, vnútorné kazetové dvere, jednoduché smrekové schody, strešnú krytinu-pieskovú lepenku.
Cena neobsahuje nátery, inštalácie, dopravu.