Bory-Zilina
    

Smart House





A/Prílepok





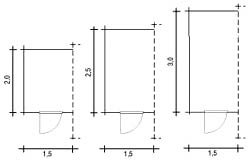
Typ
vonkajší rozmer
(m)
zastavaná plocha
(m2)
objem
(m3)
výška hrebeňa
(m)
plocha strechy
(m2)
orientačná hmotnosť
(kg)
rozmery balíka
(m)
cena
Sk s DPH
a montážou
2,0
1,5 x 1,9
2,76
4,49
1,82
3,92
255
2,20 x 1,15 x 0,40
534, 95 EUR
16 116,-
Sk
2,5
1,5 x 2,4
3,50
5,69
1,82
4,84
270
2,70 x 1,15 x 0,40
605,02 EUR
18 227,-
Sk

3,0
1,5 x 2,9
4,23
6,87
1,82
5,75
285
3,20 x 1,15 x 0,40
673, 84 EUR
20 300,-
Sk