IVA


Typ
| zastavaná plocha (m2)
| objem (m3)
| výška po hrebeň (m)
| svetlá výška prízemia (m)
| užitková plocha (m2) | plocha strechy
(m2)
| orientačná hmotnosť (kg)
| cena EUR , Sk s DPH a montážou
|
IVA
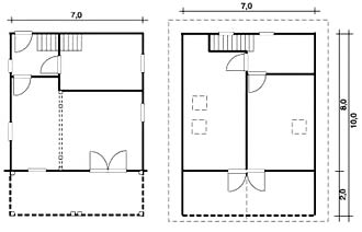
| 70,0
| 392
| 7,5
| 2,5
| 128
| 143
| 14100
| 35 754, 50 EUR 1 077 140,- Sk
|
Cena obsahuje montáž chaty, tepelnú izoláciu, euro okná a dvere,
jednoduché smrekové schody, pieskovú lepenku ako strešnú krytinu, ktorá
má životnosť 2 - 3 roky.
Cena neobsahuje inštalácie, nátery a dopravu.