
Typ
| vonkajší rozmer (m)
| zastavaná plocha (m2)
| objem (m3)
| výška hrebeňa (m)
| plocha strechy
(m2)
| orientačná hmotnosť (kg)
| rozmery balíka (m)
| cena EUR, Sk s DPH a montážou
|
ZUZANA
| 3,5 x 4,5
| 15,75
| 35,28
| 2,54
| 19,25
| 1140
| 5,00 x 1,15 x 0,70 2,00 x 1,00 x 0,33
| 3 991, 21 EUR 120 239,- Sk
|
ZUZANA GS
| 6,5 x 4,5
| 29,25
| 65,52
| 2,54
| 36,00
| 1380
| 5,00 x 1,15 x 0,90 2,00 x 1,00 x 0,33
| 4 634, 01 EUR 139 604,- Sk
|
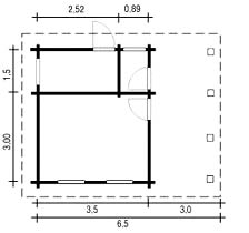
A/ ZUZANA GS
záhradná chatka zrubovej konštrukcia s tromi miestnosťami a integrovaným garážovým státím
hrúbka steny 28mm ( za príplatok 44mm)
výška bočnej steny 1,95 m
podlaha palubovková, hr. 19mm
strecha sedlová asymetrická, strešný plášť z palubovky hr. 19mm,
krytina pieskovaná asfaltová lepenka
okna otváracie 79 x 96cm 3ks a 55 x 69cm 1ks
dvere 94 x 200cm (svetlosť 80 x 186 cm) a 94 x 187 cm (svetlosť 80 x 173cm)plné, dvere 74 x 200 cm (svetlosť 60 x 186cm) plné
vonkajší rozmer 6,5 x 4,5 m
zastavaná plocha 29,25 m2
orient. hmotnosť 1380 kg
cena s DPH 4.129,45 € (124.404,-Sk) bez montáže
cena s DPH 4.634,01 € (139.604,-Sk) s montážou
Prečo garážový prístrešok s náraďovňou?- ochrana pred snehom a prachom
- miesto na odkladanie náradia
- umiestnenie prípojok
- odkladanie penumatík, autokozmetiky ...
