Smart House |
|
|
|
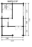
Drevodom A/MARTA 2
 Typ
| vonkajší rozmer (m)
| zastavaná plocha (m2)
| objem (m3)
| výška hrebeňa (m)
| plocha strechy
(m2)
| orientačná hmotnosť (kg)
| rozmery balíka (m)
| cena EUR, Sk s DPH a montážou
| 44
| 5,72 x 7,72
| 44,16
| 119,23
| 3,19
| 58,24
| 4100
| 6,0 x 1,15 x 0,85 2 ks
4,0 x 1,15 x 0,5
| 11 957, 08 EUR 360 219,- Sk
| 44 SP
| 5,72 x 7,72
| 44,16
| 130,71
| 3,45
| 58,24
| 4400
| 6,0 x 1,15 x 0,95 2 ks
4,0 x 1,15 x 0,5
| 12 817, 17 EUR 386 130,- Sk
| SP - spací priestor
|
|