
Polyfunkčný objekt zložený z bytových a nebytových priestorov zrealizuje spoločnosť Bôry s. r. o. na pozemkoch vo svojom vlastníctve v 2 etapách nadväzujúcich na seba.
Výhodou projektu je možnosť uspôsobiť si veľkosť bytových a nebytových priestorov podľa vlastných predstáv, ktoré budú súčasťou zmeny stavby pred dokončením.
Disponujeme právoplatným stavebným povolením na realizáciu stavby polyfunkčného objektu, ktorý sa bude nachádzať na Ul. Za Plavárňou v tesnej blízkosti OC Atrium-Dubeň a obytného súboru 3 - STAR.
►Videoprezentácia polyfunkčného objektu
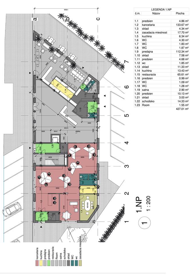
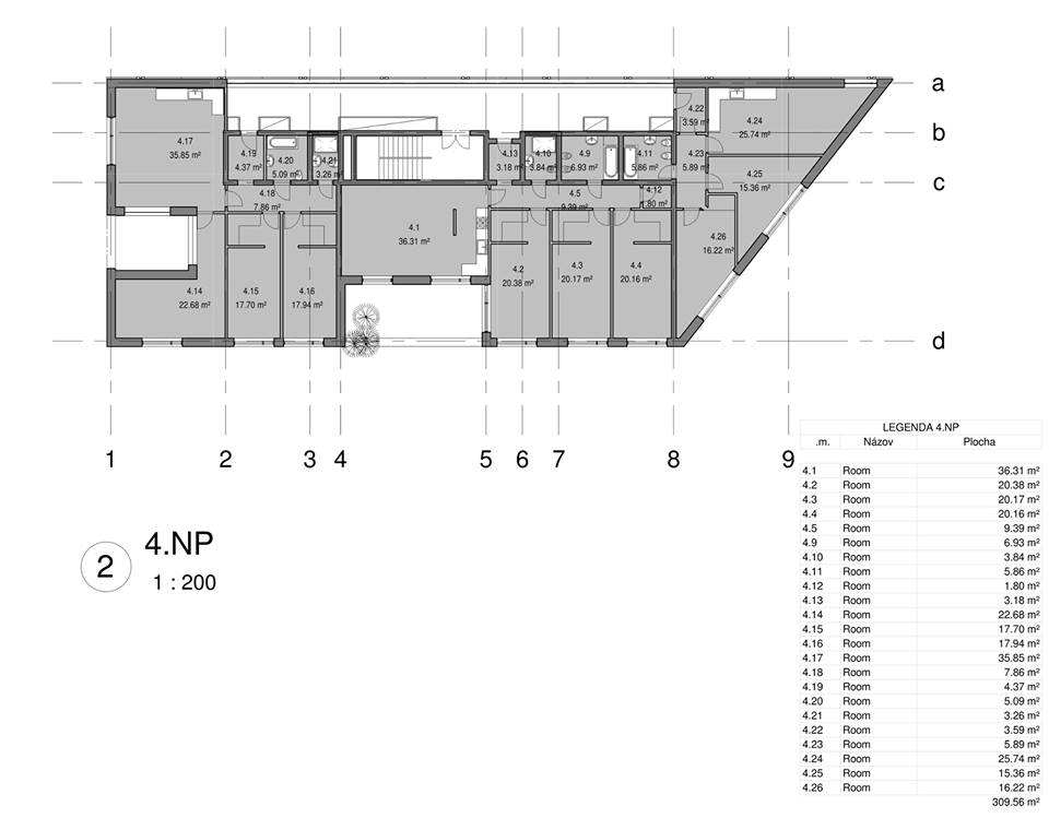
Návrhy pôdorysov
Bytová časť
Bytová časť je zo strany prístupovej komunikácie oddelená nebytovou zónou, čo zaručuje pokojné a tiché bývanie. Byty majú výhľad na lesopark. Ich juhovýchodná a juhozápadná orientácia garantuje dostatok slnka od rána do večera. Takéto riešenie v sebe spája výhody atraktívnej živej lokality a nerušeného bývania.
V okolí bytového objektu sa nachádza mnoho príležitostí na rekreáciu, relax a športové aktivity, ktoré vďaka svojmu umiestneniu ponúka mestský lesopark, mestská krytá plaváreň, športový areál Žilinskej univerzity, tenisové kurty v ktorých v tesnej blízkosti sa nachádza objekt so službami: fitness, park pilates masáže, sauny, kozmetický salón. V oblasti voľnočasových aktivít ponúka priestor možnosť aj pre nákupy a stravovanie, vďaka reštauráciám v blízkom okolí ako Atrium-Dubeň ( carrefour), Baumax, Lidl, Kaufland, Mountfield, Nay - elektrodom. V blízkosti plánovaného objektu sa nachádza Žilinská poliklinika - Vlčince, nemocnica, pošta. K objektu je perfektná prístupnosť mestskou hromadnou dopravou alebo hlavnou dopravnou komunikáciou a taktiež bezproblémový peší vstup do neďalekého centra mesta Žilina.
Areál je veľmi dobre prístupný z diaľničného ťahu Košice - Bratislava - Viedeň.
Nebytová časť
Nebytové priestory o celkovej výmere 420m² umiestnené na prízemí objektu sú vhodné pre klientské centrá, služby finančného poradenstva či pre servisné, cestovné, zásielkové alebo realitné organizácie. Podobné priestory na ďalších podlažiach sú optimálne pre administratívu, ambulancie, ateliéry a pod. Nebytové priestory sú orientované čiastočne na severnú stranu, /na stranu OC Carrefour/ väčšia časť však je orientovaná na JV, JZ a južnú stranu.
Lokalita ponúka ponúka pracovnú prevádzkovú dobru denne od 7:00 do 21:00 vrátane sobôt a nedieľ. Priemerná evidovaná návštevnosť územia je 8800 osôb denne a oslovuje potenciálnu zákaznícku klientelu Žilinského kraja a časti Trenčianskeho kraja ako spádového územia. Priestor však oslovuje klientov z celého Slovenska i zahraničia v zábere až 300 km.
Cena
Obchodné priestory: 1 480€
Kancelárske priestory: 1 290€
Bytové priestory: 1 190€
Uvedené ceny sú bez DPH za 1m² plochy.
Cena za 1m² obchodných a kancelárskych priestorov zahŕňa:
Okná - 5 komorový profil v prevedení antracit /kombinácia hlinníkových a plastových okien v závislosti od rozmerov/
Vnútorné omietky - jemná omietka striekaná, niektoré steny obkladové systémy
Vnútorné podlahy - obchodné priestory a chodby - keramické dlažby
Vnútorné podlahy - bytové priestory- keramické dlažby a laminátové podlahy
Vnútorné stropy - jemné omietky, sadrokartónové podhľady s bodovými svetlami
Interiérové dvere - obložkové zárubne, lamino alebo sklenené dvere
Vstupné dvere do bytu - bezpečnostné protipožiarne dvere
Podlahové kúrenie kombinované s radiátormi
Výťah
Terénne úpravy
1 parkovacie miesto do 100m2 zakúpených priestorov
Samostatný plynový kotol s ohrevom TUV ku každému zakúpenému priestoru (teplá úžitková voda)
Bezpečnosť- celý objekt napojený na alarm, elektrický domový vrátnik
Cena za 1m² bytových priestorov zahŕňa všetky uvedené položky pri nebytových priestoroch vrátane:
Obloženie kúpelne a toalety bez obkladového a podlahového materiálu
Vývody v sociálnych zariadeniach
Vývody na kuchynskú linku
Materiály objektu
Základy, deky a strechy - betón B25
Obvodové múry - Ytong 375
Priečky - Ytong, 125, 250
Zateplenie - Polystyrén 5 cm
Zateplenie strechy a podlahy - polystyrén 10 cm
V prípade akýchkoľvek otázok Vám na ne radi zodpovieme na nižšie uvedených telefónnych číslach
Satelitná snímka - Mapa
Spôsob obstarania: Predaj