Smart House
Smart House
Organizácia podujatí, reklama, propagácia > Detaily
späť na zoznam
MALACKY
(29.02.2012, 07:04)
MALACKY
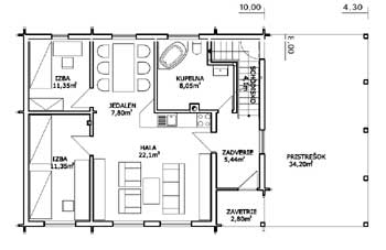
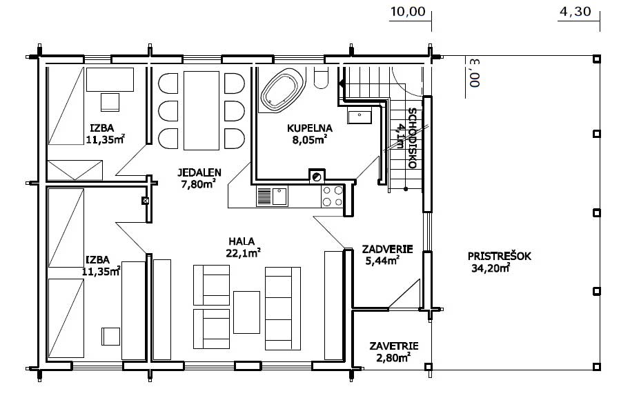
rodinný dom dvojpodlažný
POPIS
Rozmer:
10,0 x 8,0 m
Úžitková plocha:
118 m
2
POHĽADY
Západný
Južný
Východný
Severný
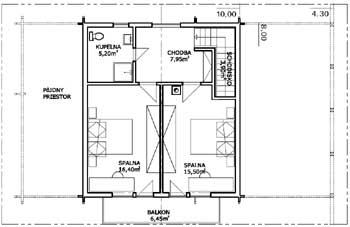
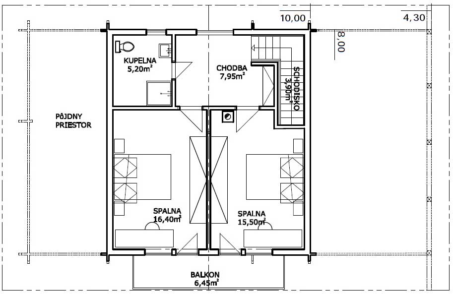
PÔDORYS
Fotogaléria
fotoalbum